
П28
Теплообменник П28 пищевого назначения. Отличием от типового исполнения (ТИ 28) на данный теплообменник устанавливаются пищевые штуцера и, по желанию заказчика, теплообменный аппарат облицовывается нержавеющей сталью. Особая конструкция клипа надежно закрепляет уплотнение на пластину, это исключает обрыв при монтаже пластины и обеспечивает надежность эксплуатации.
Скачать 3D модели
3D модели (IGES, DWG) для П28Чертеж и Размеры
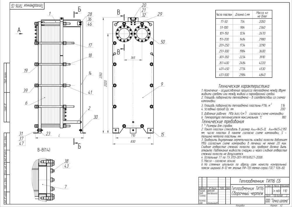
Чертеж пластинчатого теплообменника П28 поможет разобраться в типоразмерах нашего модельного ряда, который отличается от других производителей. При необходимости в 3D моделях определенного формата, Вы всегда можете обратиться к нашим инженерам. Также размеры теплообменника указываются в документе "Технические данные", который идет вместе с коммерческим предложением (расчётом теплообменного аппарата).
Часто задаваемые вопросы
Какая площадь теплообмена у теплообменника П28?
Площадь теплообмена может служить параметром расчёта по некоторым методикам. Однако для того, чтобы подобрать оптимальный теплообменный аппарат, мы не используем данную характеристику и опираемся на температурные графики, мощность и потери давления. Тем самым алгоритм подбора выдает компоновку каналов опираясь на математическую модель нашей пластины.
Рассчитать теплообменник?
Для расчёта пластинчатого теплообменника при стандартных потерях давления необходимо 5 значений: температурные графики (температуры греющей и нагреваемой сред на входе и выходе из теплообменника). А также мощность (тепловая нагрузка) или расход по нагреваемой среде. Форма заявки онлайн для расчёта доступна по ссылке подбор теплообменника онлайн
Кто является производителем данного теплообменника?
Производство пластин, уплотнений и сборка теплообменника П 28 локализовано в ООО "Термоблок" - дочернем предприятии Барнаульского станкостроительного завода.

